Welkom in Zuidhorn, Wonen, Winkelen, Westerkwartier

Zuidhorn wil Oostergast naar Stad uitbreiden

6 maart 2026    Zuidhorn-nieuws
Inloopbijeenkomst mogelijke woningbouw Oostergast Oost
Oostergast-vogelvlucht

Gemeente Westerkwartier organiseert een inloopbijeenkomst over de mogelijke ontwikkeling van woningbouw in Oostergast Oost in Zuidhorn op dinsdag 17 maart 2026 van 18.30 - 20.30 uur (vrije inloop) in Brasserie Kade Z, Van Starkenborghkanaal Zuidzijde 1 te Zuidhorn

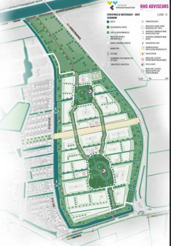
Tijdens deze bijeenkomst wordt het Streefbeeld voor mogelijke woningbouw in Oostergast Oost toegelicht. Medewerkers van de gemeente en het bureau Rho Adviseurs zijn aanwezig om u uitleg te geven en uw vragen te beantwoorden. Zij gaan graag met u in gesprek over het Streefbeeld, om te toetsen of deze aansluit bij uw verwachtingen en behoeften. Het Streefbeeld kunt u hieronder vinden.

Vervolg op modellenstudie
Tijdens een inloopbijeenkomst in november 2025 hebben we drie ruimtelijke modellen gepresenteerd voor woningbouw in Oostergast Oost. De modellen geven vanuit verschillende invalshoeken inzicht in de manier waarop woningbouw in Oostergast Oost plaats zou kunnen vinden. 

Op de modellenstudie zijn 29 reacties ontvangen. Deze reacties hebben we betrokken bij het opstellen van het Streefbeeld voor woningbouw in Oostergast Oost. Het verslag van de participatie op de modellenstudie is hieronder te vinden.

Aanleiding 
In de gemeente is grote behoefte aan nieuwe woningen. Deze bouwen we het liefst op plekken waar al woningen staan (inbreiding) of waar we oude gebouwen opnieuw kunnen gebruiken (herontwikkeling). Maar dat is niet genoeg. Daarom zijn ook nieuwe bouwlocaties (uitbreiding) nodig. De locatie Oostergast Oost in Zuidhorn kan hierbij mogelijk uitkomst bieden. Dit gebied ligt tussen de rondweg N355 en de Oostergast. Deze locatie staat ook in het op 6 juni 2024 vastgestelde Dorpswoonplan Zuidhorn- Briltil.

  • Oostergast oost
Meer nieuws... Tip de redactie...

 

Laatste nieuws

Oostergast-vogelvlucht

Zuidhorn wil Oostergast naar Stad uitbreiden

06 maart 2026    Zuidhorn-nieuws
Inloopbijeenkomst mogelijke woningbouw Oostergast Oost
Lees verder →
Cda huurdersplatform

CDA Westerkwartier in gesprek met Huurdersplatform Leek

06 maart 2026    Zuidhorn-nieuws - Gemeente-informatie & Politiek
Tijdens het gesprek kwamen verschillende actuele thema’s aan bod
Lees verder →
Isabella werkhoven (1969), interlude (berenklauwen 4), 2013-2018, olieverf op linnen

Talkshow Kunstproat in Museum Wierdenland

05 maart 2026    Zuidhorn-nieuws
Kunstenaars Gronings Licht in gesprek met kunstjournalist Eric Bos
Lees verder →
Onthulling  centrumvise

Centrum Zuidhorn: groener en aantrekkelijker

04 maart 2026    Zuidhorn-nieuws - fotos
Na de zomer feestelijk moment voor inwoners
Lees verder →
Keukentafel lto

CDA Westerkwartier en LTO spreken over vergunningen, stikstof en toekomstperspectief

04 maart 2026    Zuidhorn-nieuws - Gemeente-informatie & Politiek
Tijdens het overleg is gesproken over de gevolgen van gemeentelijke besluitvorming voor boeren en hun bedrijven.
Lees verder →
Cda 2026

CDA op campagne in het Middag Humsterland: luisteren, verbinden en toekomstgericht besturen

03 maart 2026    Zuidhorn-nieuws - Gemeente-informatie & Politiek
Het bezoek onderstreepte hoe belangrijk het is dat bestuurders niet alleen beleid maken vanaf papier, maar eerst goed luisteren naar de praktijk
Lees verder →